Glorieta Ruiz Jimenez

Diseño, luz y proporciones señoriales en una vivienda en chaflán con 7 balcones y vistas despejadas en Chamberí

2.900.000,00€
2
1
3
2
1
3

Características

Estado
En reforma
Tipo de Propiedad
Piso
Ubicación
Chamberí
Año de construcción
1945
Habitaciones
3
Baños
4
Aseo de cortesía
Cuarto de lavandería
Planta
3
Ascensor
1
Trastero
No
Superficie construida
253
Orientación
Sur, oeste, este
Terraza / Balcones

Descripción

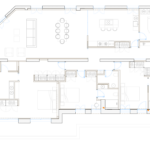
Este proyecto en Glorieta Ruiz Jiménez se articula en torno a una zona de día de gran escala, donde salón, comedor y cocina se organizan siguiendo la geometría del chaflán. Un espacio amplio y continuo, bañado por la luz de sus siete balcones con orientación sur y oeste, que permite distintas formas de habitarlo sin perder conexión visual entre ambientes.

La distribución consigue algo poco habitual: integrar y, a la vez, diferenciar. La cocina se mantiene vinculada al conjunto, pero con la suficiente independencia para no invadir el espacio del salón, generando un equilibrio natural entre lo social y lo funcional.

La triple orientación —sur, oeste y este— acompaña este recorrido, aportando una luz constante que cambia a lo largo del día y define la atmósfera de cada zona. La fachada exterior, prácticamente continua, abre la vivienda a la ciudad y amplifica la percepción de espacio.

La zona de descanso mantiene esa misma lógica de proporción y confort, con dormitorios amplios que permiten incorporar zonas de trabajo o lectura con naturalidad, sin comprometer la sensación de orden y calma. La habitación principal, de cerca de 40 m², se concibe como un espacio propio dentro de la vivienda, con un gran ventanal que inunda la estancia de luz y un baño en suite que combina bañera, ducha y zona de tocador, pensado para acompañar el ritmo del día con equilibrio.

La vivienda se completa con dos baños adicionales y un aseo de cortesía en la zona social, aportando comodidad y fluidez en el uso diario. La zona de laundry, independiente y estratégicamente ubicada en una estancia de aproximadamente 6 m², permite mantener la funcionalidad del día a día sin interferir en la estética ni en la calma del espacio principal.

Ubicada en una tercera planta alta, en uno de los puntos más representativos de Chamberí, la vivienda combina la elegancia de la arquitectura clásica con una forma de vivir contemporánea, donde todo queda a distancia caminable y el ritmo del barrio acompaña.

Actualmente en proceso de transformación, esta vivienda será completamente reformada por Neodomos, respetando su carácter señorial y adaptándolo a un estilo de vida actual, funcional y listo para estrenar.

Una Signature Home donde la escala, la luz y la distribución se alinean para crear una forma de vivir más abierta, más cómoda y conectada con la ciudad.

Ver descripción completa

Equipamiento destacado

Equipamiento
Aire acondicionado, Calefacción, Cocina equipada

Servicios de la finca

Servicios
Conserje

Ubicación

Dirección
5, Glorieta de Ruiz Jiménez, Trafalgar, Chamberí, Madrid, Comunidad de Madrid, 28015, España
5, Glorieta de Ruiz Jiménez, Trafalgar, Chamberí, Madrid, Comunidad de Madrid, 28015, España

Plano

Subida de archivo
Se ha producido un error y no hemos podido tramitar tu solicitud.
Solicitud recibida. Un experto de nuestro equipo ha recibido tu solicitud y se pondrá en contacto contigo a la mayor brevedad para ofrecerte toda la información sobre este hogar.

Solicitar Información

El campo SMS debe contener entre 6 y 19 cifras e incluir el prefijo del país sin «+» ni «0» delante (ej.: 34xxxxxxxxxxx para España)
?

Anuncios Relacionados

Cea Bermudez

0 (0 reseñas)
2.300.000,00€